Welcome Kyle

Last Updated: Januray 29th 2026

Scope of Work

Basement Wiring

We will rough-in and finish the basement wiring as well as make any needed adjustments to the current wiring that is there to accommodate the new layout. All materials including recessed lights and exhaust fans will be supplied by Apollo Homes. Decorative fixtures are to be supplied by Builder.

Project Total: $9,325.21 (+$322.00 extra for decora devices)

Garage Rewire & Finished Space

We will remove the old wiring to accommodate for the renovations in the garage area, reconnect / junction any wiring that needs to remain and wire the new finished space above the garage.

Project Total: $9,705.55 (+$238 extra for decora devices)

Project Gallery

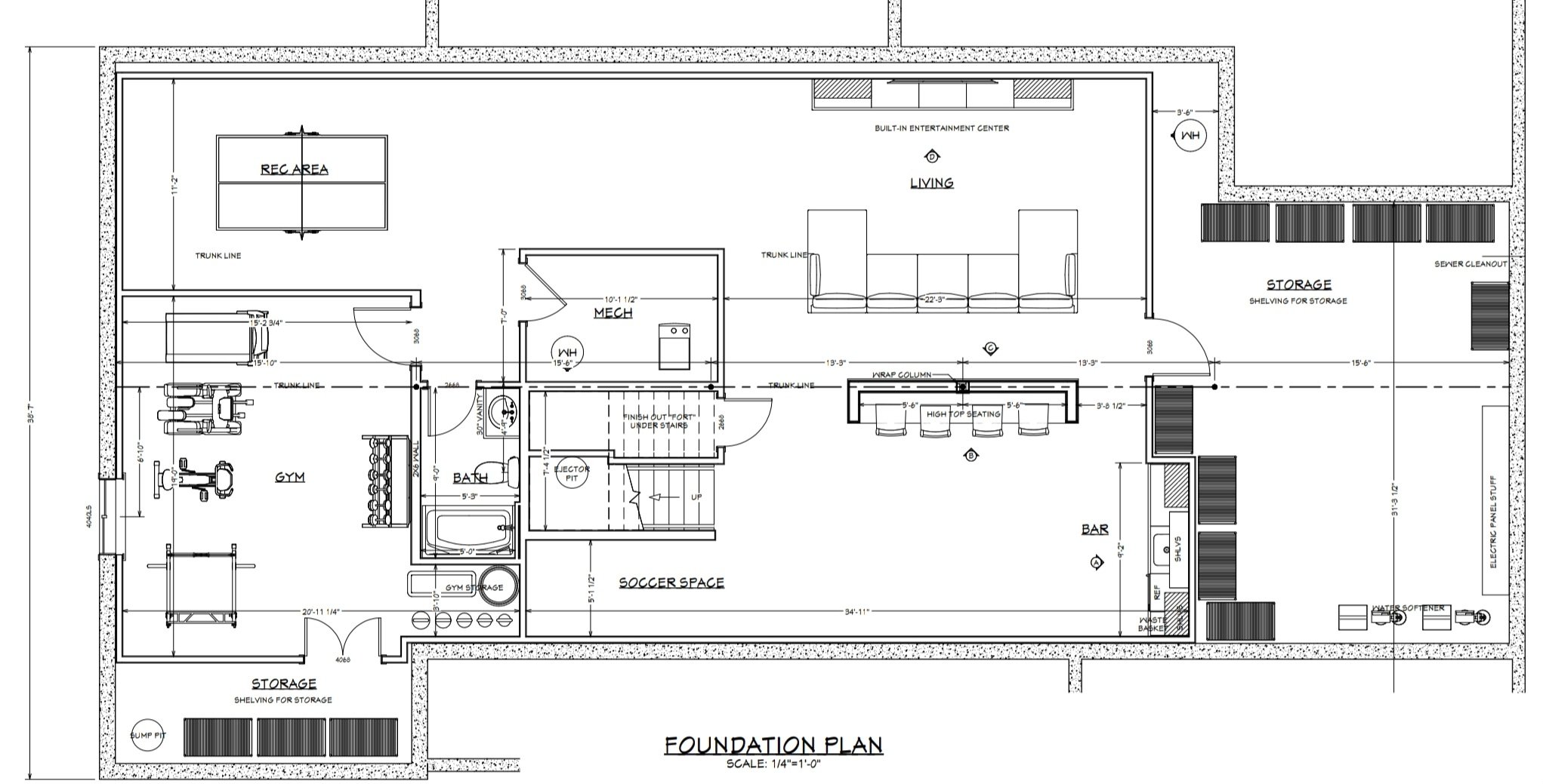
Blueprints 1

(Quoted Print)

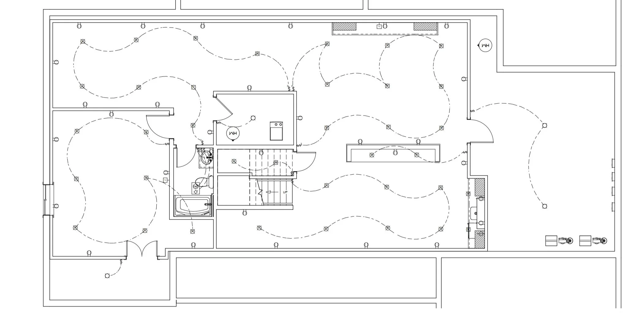
Blueprints 2

(Quoted Print)

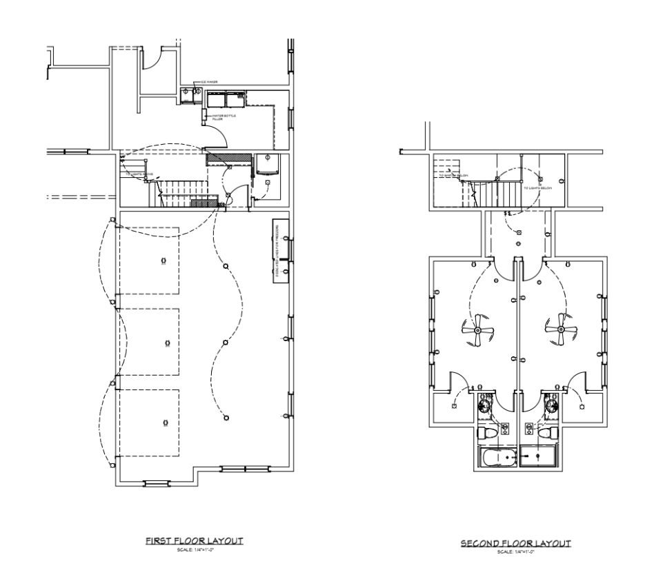
Blueprints 3

(Quoted Print)

Apollo Homes

License & Insurance Information